Przestronny dom dwukondygnacyjny - Borowy Zakątek
Dodatkowe informacje
Opis nieruchomości
Przestronny dom dwukondygnacyjny w Borowym Zakątku – OFERTA PREMIUM
0% PROWIZJI!
0% PCC!
Zapraszamy do zapoznania się z wyjątkową inwestycją deweloperską – Borowy Zakątek, zlokalizowaną w spokojnej części Opola, w Czarnowąsach przy ulicy Borowej. Nowoczesne osiedle zaprojektowane z myślą o komforcie i funkcjonalności oferuje różnorodne typy domów, spełniające potrzeby nawet najbardziej wymagających klientów.
Borowy Zakątek to kameralne osiedle składające się z 20 nowoczesnych budynków w trzech konfiguracjach:
• 8 domów w zabudowie bliźniaczej – powierzchnia całkowita 146,33 m²
• 8 domów wolnostojących dwukondygnacyjnych – powierzchnia całkowita 164 m²
• 4 domów parterowych – powierzchnia całkowita 134,63 m²
Opis domu dwukondygnacyjnego (wolnostojącego):
• Powierzchnia całkowita: 164 m²
• Powierzchnia użytkowa: 139,80 m²
• Powierzchnia działki: 650 m²
• Garaż: 24,20 m²
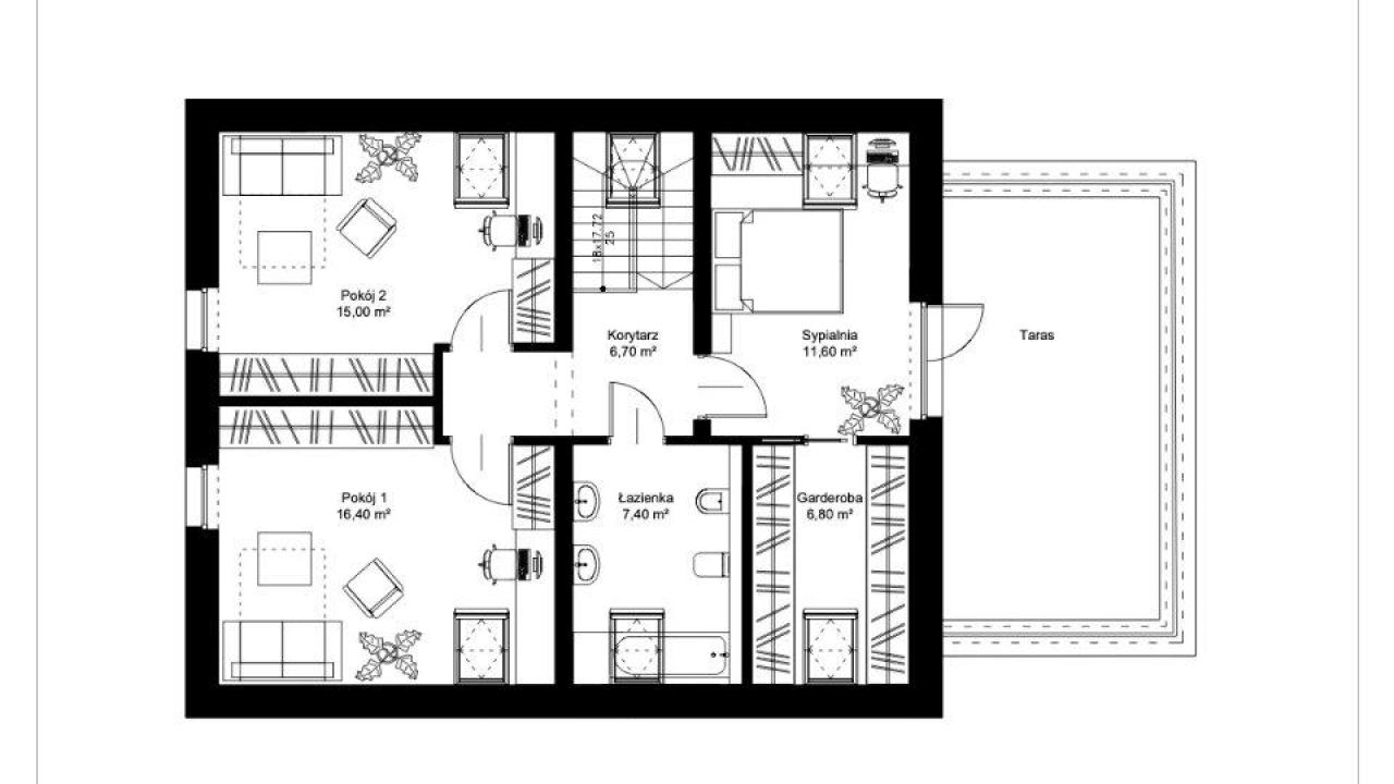
Rozkład pomieszczeń:
Parter (75,90 m² + 24,20 m² garaż):
• Salon: 28,8 m²
• Kuchnia: 9,20 m²
• Spiżarka: 2,40 m²
• Garderoba: 2,40 m²
• Pokój: 8,90 m²
• Łazienka: 4,60 m²
• Komunikacja: 9,70 m²
• Wiatrołap: 4,00 m²
• Kotłownia: 5,90 m²
Piętro (63,90 m²):
• Sypialnia: 11,60 m²
• Garderoba: 6,80 m²
• Pokój 1: 16,40 m²
• Pokój 2: 15,00 m²
• Łazienka: 7,40 m²
• Korytarz: 6,70 m²
Wysokiej klasy wyposażenie i instalacje:
• Sterowniki ogrzewania i alarmu zapewniające pełną kontrolę nad komfortem i bezpieczeństwem.
• Żaluzje fasadowe sterowane elektrycznie, obsługiwane także przez aplikację mobilną.
• Parapety wewnętrzne z konglomeratu, nowoczesne drzwi zewnętrzne PCV oraz eleganckie szklane balustrady.
• System CO – ogrzewanie podłogowe z gruntową pompą ciepła, moduł pasywnego chłodzenia i rekuperacja dla świeżego powietrza i oszczędności energetycznych.
• Pomieszczenie gospodarcze w pełni wykończone – kafelki, malowane ściany i oświetlenie, w którym znajduje się pompa ciepła i rekuperator.
• Planowane zagospodarowanie terenu wokół domu – przewiduje się położenie trawy w rolce, instalację automatycznego systemu nawadniania oraz estetyczne wykończenie przestrzeni zewnętrznej.
Atuty osiedla:
• Nowoczesny styl zabudowy
• Bogata infrastruktura zieleni
• Bezpieczne place zabaw dla dzieci
• Przemyślana komunikacja wewnętrzna na terenie osiedla
Dlaczego warto?
Dom został zaprojektowany z myślą o klientach premium, którzy oczekują najwyższej jakości oraz przemyślanych rozwiązań technologicznych i architektonicznych. Powierzchnia 164 m² pozwala na maksymalne wykorzystanie przestrzeni i komfort życia w nowoczesnym, funkcjonalnym wnętrzu. To gotowa propozycja, która łączy nowoczesność, funkcjonalność i wygodę.
Skontaktuj się z nami już dziś, aby poznać szczegóły i zarezerwować swój wymarzony dom!
Oferujemy wsparcie w uzyskaniu kredytu hipotecznego – nasi doradcy finansowi są do Twojej dyspozycji.
Niniejsze ogłoszenie ma wyłącznie charakter informacyjny i nie stanowi oferty w rozumieniu art. 66 § 1 Kodeksu cywilnego. Przedstawione informacje, wizualizacje, opisy oraz dane dotyczące nieruchomości mają charakter poglądowy i mogą ulec zmianie. Biuro nieruchomości dokłada wszelkich starań, aby treść ogłoszenia była aktualna i rzetelna, jednak nie ponosi odpowiedzialności za ewentualne nieścisłości lub zmiany w ofercie dokonane przez właściciela nieruchomości.









Komentarze Dodaj komentarz